Бизнес Окна - Джамбо стеклопакеты.
Остекление Фахверкового дома,Барнхаус,Афрейм
Безрамное остекление Джамбо стеклопакетами деревянных домов - Фахверк, Барнхаус, Афрейм, каркасный дом и другие деревянные строения в Москве, Московской области и другие граничащие с ней регионы, такие как: Владимирская область, Тверская область, Тульская область, Рязанская область, Калужская область, Ярославская область, Костромская область, Нижегородская область, Смоленская область и т.д.
ОСТАВИТЬ ЗАЯВКУ
тел:+7 499 390 61 35
email: okno4doma@yandex.ru
ВЫЗВАТЬ ЗАМЕРЩИКА
Безрамное остекление Фахверка стеклопакетами
Безрамное остекление Фахверка стеклопакетами
Безрамное остекление Фахверка стеклопакетами
Безрамное остекление Фахверка стеклопакетами
История происхождения фахверкового стороительства домов началась в древнем Риме, когда римляне на вновь завоеванных землях быстро возводили строения, используя стоично-балочную технологию, другими словами каркас. Стены между стойками и балками заполняли подручными материалами типа камней, глины, соломы с цементом и прочими материалами. Оттуда и зародилась технология возведения домов и зданий по технологии Фахверк, что означает стоично-балочная конструкция с подкосами.
До наших времен эта технология сохранилась, конечно, в модернезированном варианте. В ней часто используется клееный брус и стены из стекла. Именно эту часть дома, остекление, мы воплощаем в реальность, используя современные материалы и технологию.
Только узкопрофильная компания, как мы, может грамотно остеклить дом безрамными стеклопакетами. Доверьте ваш проект специалистам.
Остекление Фахверкового дома безрамными Джамбо стеклопакетами в Московской области и других регионах

Безрамное остекление с каждым днем становится популярнее и популярнее. Такое остекление актуально для домов типа Фахверк. Его отличительная черта - стены дома из Джамбо стеклопакетов. Для остекления Фахверка применяются стекла 6 мм и толще. Стекла могут быть закаленные, триплекс, ударостойкие, звукоизоляционные. Обязательное правило для панорамного остекления такого дома - стеклопакет должен быть энергоэффективным и с теплой дистанционной рамкой от промерзания. Ведь в жаркие солнечные дни стеклопакеты должны оберегать помещение от перегрева, а в зимний период исключать теплопатери.
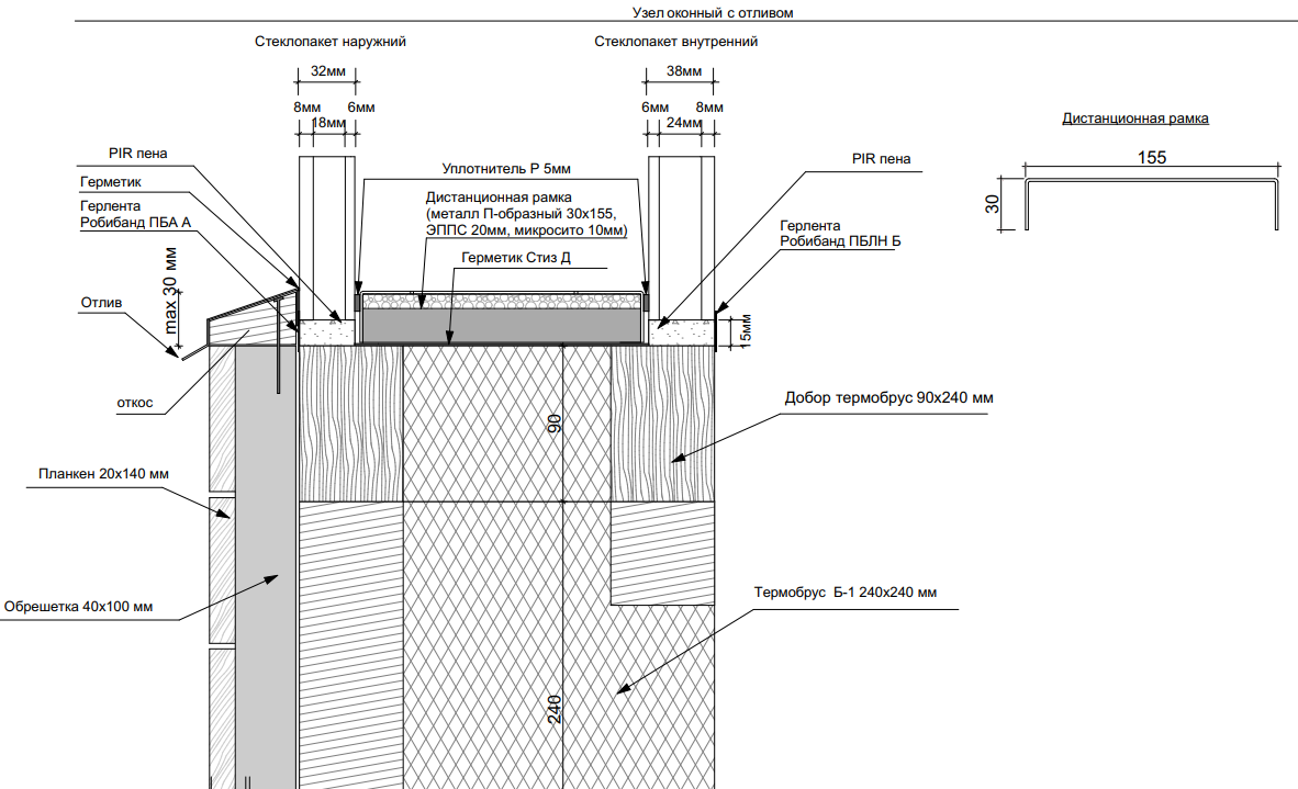
Установка стеклопакетов производится в пазы, которые фрезеруются в брусе на этапе его изготовления. Внутри паза наклеивается специальная саморасширяющаяся лента ПСУЛ для дополнительной герметизации. После установки стеклопакета, основная герметизация проводится специальным герметиком, который наносится по периметру стеклопакета с внешней и внутренней стороны.
Цену на Фахверковое остекление уточняйте у наших менеджеров. Цена на безрамное остекление за 1 м/кв разная, зависит от формулы, размера стеклопакета и способа монтажа.
Максимально возможные размеры Джамбо стеклопакета 6000мм на 3210мм. Толщина стекла для данных размеров от 10мм закаленное или стекло триплекс 5+5мм.
Безрамное остекление стеклопакетами в два контура
Безрамное остекление стеклопакетами подходит не для каждого деревянного дома. К примеру, дом из сруба или профилированного бруса дает усадку, в таких домах необходимо делать окосячку для безрамного монтажа стпеклопакетов, в ином случае монтаж запрещен.
Безрамное остекление стеклопакетами лучше всего подходит для каркасного деревянного дома или дом из клееного бруса, он не дает усадку. В деревянных оконных проемах паз или четверть для монтажа стеклопакетов не обязательна, установка производится по особой технологии. Размеры стеклопакетов можно изготовить шириной более четырех метров и высотой от пола до потолка. Такое остекление можно смонтировать в один или два контура через специальную утепленную дистанционную рамку между стеклопакетами. Нижняя рамка заполняется малекулярным ситом(влагопоглатитель).
Цену на безрамное широкоформатное остекление уточняйте у наших менеджеров. Цена остекление за 1 м/кв разная, зависит от формулы и размера стеклопакета.

Безрамное остекление в два контура через специальную дистанционную рамку

Узел крепления безрамного стеклопакета в деревянный оконный проем
Монтаж стеклопакетов до 50 кг возможно производить вручную , стеклопакеты от 50 кг - с применением спецтехники (их вес может достигать до 1500 кг).

Монтаж стеклопакетов весом до 1500 кг

Монтаж стеклопакетов мини краном внутри дома
Наша задача — создавать комфортную среду в доме за счет опциональных стеклопакетов и взвешенных решений.
Теплые дистанционные рамки CHROMATECH ultra
CHROMATECH ultra – современная дистанционная рамка «Тёплый край». Выполнена из жесткого пластика и высококачественной нержавеющей стали. Благодаря ее низкому коэффициенту теплопроводности, который необходим для безрамного остекления стеклопакетами фахверковых домов, обеспечивается защита от выпадения конденсата. Стеклопакет, монтирующийся без рамы в проем с обычными металлическими дистанционными рамками, будет конденсировать (запотевать), так как эта металлическая рамка будет промерзать.
Цвет дистанционных рамок представлен в нескольких вартантах, поэтому Вам не составит труда подобрать нужный к дизайну вашего дома.
Мультифункциональный стеклопакет
Мягкое металлическое напыление на поверхность стекла препятствует проникновению УФ лучей и обеспечивает комфортную среду в помещении в жаркие летние дни.
В зимний период мультифункциональный стеклопакет работает по принципу энергосбережения. За счет серебрянного покрытия тепловое излучение отражается обратно в помещение.
Степень прозрачности за счет такой опции не теряется и к тому же добавляется легкое отзеркаливание, что порой очень важно для частного дома. С улицы помещение не просматривается,а изнутри помещения улица видна.
Стеклопакет триплекс
Стеклопакет из стекла триплекс-это прочная и надежная конструкция, созданная из двух или несколько закаленных стекол, склеенных между собой специальным клеем. Прозрачность такого стекла не теряется.
Разбить такое стекло сложно, но если все таки такое произойдет, осколки стекла не рассыпятся и останутся на пленке, не поранив окружающих. Такое строение стеклянного полотна так же повышает безопасность дома. Проникновение злоумышленика в помещение через стекло практически невозможно.
Шумоизоляционный стеклопакет
Шумоизоляция двухкамерного стеклопакета достигается за счет разной толщины стекол, но с одинаковыми дистанционными рамками. Наличие хотя бы одного стекла триплепкс еще больше увеличивает шумоизоляцию. Ширина дистанционной рамки также влияет на подавление шума.Чем шире рамка, тем лучше шумоизоляция. Но она должна быть не более 16 мм. При ширине рамки более 16 мм возможны теплопотери. Для их предотвращения можно использовать заполнение камеры Аргоном.
Безрамные стеклопакеты могут быть только глухими. Для открывающихся окон и дверей мы применяем экологичные пластиковые изделия марки Мелке. Пластиковые окна и двери бывают не только белого цвета, их можно заламинировать в любой цвет по таблице RENOLIT или покрасить по RAL.
Так же для открывающихся окон и дверей используем алюминиевый профиль с терморазрывом от промерзания. Его тоже можно покрасить в любой цвет по RAL для гармонии общего дизайна фасада.
В ассортименте окон и дверей имеются не только поворотно-откидные и распашные окна и двери, но и раздвижная портальная система открывания с максимальной высотой створки 2400 мм и максимальной шириной створки 1500 мм, весом до 160 кг.


Расчет веса стеклопакетов
| Толщина стекла (мм) | Вес одного кв/м (кг) |
| Стекло 3 мм | Вес 7,5 кг |
| Стекло 4 мм | Вес 10 кг |
| Стекло 5 мм | Вес 12,5 кг |
| Стекло 6 мм | Вес 15 кг |
| Стекло 8 мм | Вес 20 кг |
| Стекло 10 мм | Вес 25 кг |
| Стекло 12 мм | Вес 30 кг |
Отзывы
Обратился в эту фирму только потому что они стеклили уже не первый дом в нашем поселке и я остался доволен. После доставки уже на следующий день приступили к установке. Привезли с собой специальную технику с присосками и закончали под ключ через 2 дня. Спасибо за индивидуальный подход.
ИВАН
Проект дома готовился индивидуально по моим пожеланиям. В связи с этим возникли сложности с остеклением. Но бригада все равно справилась с задачей, получилось все аккуратно. Уложились за 4 дня.
Лариса
Хотела поблагодарить за серьёзное отношение к делу и профессионализм. Особенно меня порадовало качество стекла, без бликов. Алексей помог мне подобрать необходимые стекла в дом для комфортного проживания в дальнейшем.
Наталья
Есть вопросы? Напишите. Вместе мы подберем стеклопакеты для Вашего дома с максимально эффективным функционалом.
ЗАДАТЬ ВОПРОС

График работы
Пн-Пт 9:00-20:00
Сб,Вс 10:00-19:00
Сайт не является публичной офертой и носит только информационный характер.
2025г. Бизнес окна.


























